聯系電話如果您正在尋找相關產品或有其他任何問題,可隨時撥打我公司銷售熱線:400-8789-055
在線咨詢什么是液上裝卸車鶴管液下裝卸車鶴管,液下裝卸車鶴管與液上裝卸車鶴管的區別有哪些?鶴管大家都知道,它一種可以伸縮移動的管子,多用于石油、化工碼頭液體裝卸,管內介質如油、水等。鶴管生產廠家(Autower)深奧圖匯總汽車、火車專用的上裝鶴管和下裝鶴管相關問題知識,附鶴管裝車流程圖予以說明。

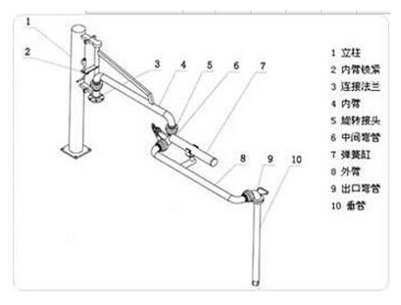
鶴管廠家(Autower)深奧圖
石油化工行業購買鶴管時怎樣區分上裝鶴管或下裝鶴管?記得鶴管生產廠家(Autower)深奧圖技術李工曾講過,上裝鶴管和下裝車鶴管主要是通過管線插入方式不同以及泵的作業方向來確定,跟位置高低、管線粗細無關。
上裝鶴管,亦稱頂部裝卸臂,主要是用于裝載臺與公路/鐵路槽車頂部敞開式和密閉式的液體或氣體傳輸的專用設備。

鶴管裝車流程圖
下裝鶴管也叫底部鶴管,主要用于橇裝臺與公路、鐵路槽車之間的液體介質輸送,適用與目前國際上先進的油庫自動化底部發油系統,它能實現快速對接,增加安全性,提高裝車效率;同時在油氣類介質裝卸時使用,能大大減少斷開時液體的跑損,適用于多倉同時裝車。
汽車、火車專用的上裝鶴管和下裝鶴管廠家(Autower)深奧圖提供低溫鶴管、石油鶴管、LNG鶴管、液氨鶴管,其生產的上裝鶴管和下裝鶴管主要是根據的管道設計工藝,泵的作業方向來確定的,跟位置的高低,管道口徑大小無關,主要是根據客戶提供的技術參數和現場條件進行設計和制造。對什么是液上裝卸車鶴管液下裝卸車鶴管有以上了解以后,如果您對SIS系統廠家深奧圖鶴管(流體裝卸臂)產品想了解更多,請點擊在線咨詢
,或致電400-8789-055,我們第一時間為您提供最成熟的自動化解決方案。
郵 箱:szautoware@163.com
傳真號碼:0755-83658663
公司電話:0755-83653481
客服 QQ:2850788076 2850788033
客服電話:18033424683 18025308408
地 址:深圳市龍華新區清龍路港之龍商務中心A棟10樓B區

專業智能一卡通裝卸車系統廠家,在國內外積累了豐富的施工經驗,歡迎您預約就近省份地區的實地案例進行考察。










































