聯系電話4008789055
如果您正在尋找相關產品或有其他任何問題,可隨時撥打我公司銷售熱線:400-8789-055
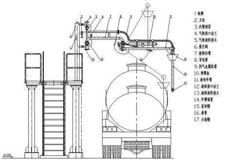
在線咨詢名詞解釋:液體裝卸臂(liquid loading arm),用于汽車槽車、火車槽車或槽船裝卸液體介質的裝卸設備。液體裝卸臂按應用場所分為陸用和船用,其中陸用液體裝卸臂俗稱為“鶴管”;按裝卸貨種可分為液體化工品、液化氣及油品三類。液體裝卸臂主要由旋轉接頭、內臂、外臂、垂管(主要陸用)、三維接頭(主要船用)、平衡器、控制系統等部件組成。

陸用液體裝卸臂結構示意圖
液體裝卸臂是石油化工、液化天然氣等碼頭常用的裝卸設備,基本參數有公稱壓力、設計溫度和公稱尺寸。設備的選用臺數按年周轉量、泊位噸級、裝車臺的日作業批次、運輸方式、道路運輸狀況及車輛周轉情況等綜合因素確定。
液體裝卸臂常用的結構型式較多,陸用液體裝卸臂采用頂裝頂卸方式時通用設置操作平臺,以方便操作人員上下槽車以及檢修作業。

專業智能一卡通裝卸車系統廠家,在國內外積累了豐富的施工經驗,歡迎您預約就近省份地區的實地案例進行考察。
